Skip to main content
Pending
$179,000

6105 E 152nd Street
Grandview, MO 64030

Single Family
Residential
3
Beds
1
Baths
962
Sq. Ft.
0.2
Acre Lot
Agent Websites> Missouri> Grandview> 64030
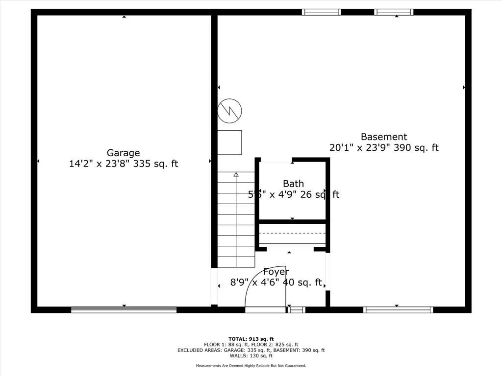
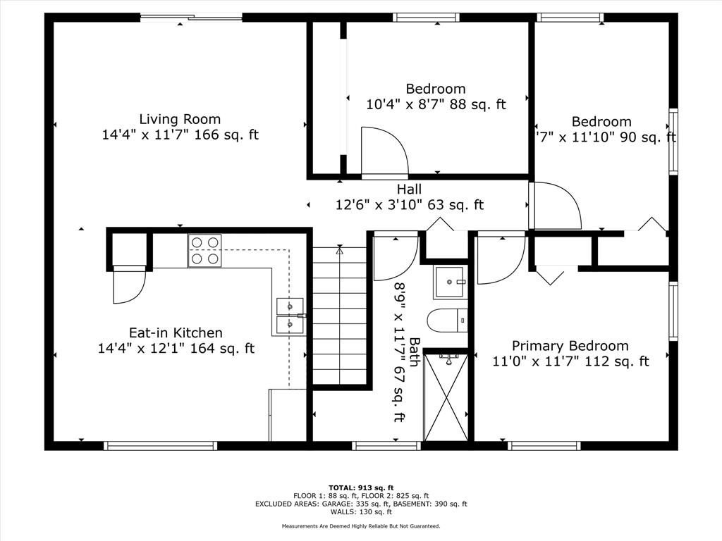
This Grandview raised ranch is packed with potential and primed for its next chapter. Whether you're an investor looking for your next project or a future homeowner ready to roll up your sleeves and build equity, this one's worth a closer look. Upstairs features three generous bedrooms, a full bath, and a living space with original hardwoods and natural light throughout. The kitchen is clean and functional, with plenty of space to make it your own over time. The lower level is a blank canvas and ready for you to create your own rec room, laundry area, and a half bath Outside, you'll find a flat, fenced-in yard and a manicured exterior that already brings solid curb appeal. An attached 1-car garage rounds out the package. Whether you're looking to renovate and flip, update and rent, or build some sweat equity - this one checks all the boxes for location, layout, and potential.
2577124
Single Family, Traditional
3
Jackson
1 Full
1965
0.2 Acres
Public Water
Frame
Public Sewer
True https://photos.prod.cirrussystem.net/993/9aeb10bdfa4ab164357ada4a352b0813/986968213.jpeg 2577124
Loading...
Data Source: Constellation Data Labs®
The scores below measure the walkability of the address, access to public transit of the area and the convenience of using a bike on a scale of 1-100

Walk Score

Transit Score

Bike Score

Loading...
Data Provided by ATTOM Data®
The information displayed on this page is confidential, proprietary, and copyrighted information of Heartland Multiple Listing Service, Inc. (Heartland MLS). Copyright 2022, Heartland Multiple Listing Service, Inc. Heartland MLS do not make any warranty or representation concerning the timeliness or accuracy of the information displayed herein. In consideration for the receipt of the information on this page, the recipient agrees to use the information solely for the private non-commercial purpose of identifying a property in which the recipient has a good faith interest in acquiring.
This content last refreshed on 11/10/2025 6:54 PM CST. Some properties which appear for sale on this web site may subsequently have sold or may no longer be available.
Information is deemed reliable but is not guaranteed.